Страна / город: Россия, г.Челябинск
О НАШЕЙ ТРАДИЦИИ И АВТОСЕРВИСЕ ИЗ_ЛСТК НА 4 ПОСТА
Есть у нас одна хорошая традиция. После введения объекта в эксплуатацию и начала работ мы приезжаем на место, чтобы лично встретиться с заказчиком и убедиться в отсутствии нареканий или исправить недочет, если все-таки он возник. Хотя такие ситуации бывают крайне редко.
На днях мы посетили автосервис, который был сдан осенью этого года. В настоящее время объект эксплуатируется, заказчик проектом доволен, а значит довольны и мы.
Весь процесс строительства, включающий этапы проектирования, изготовления, монтажа и отделки — занял 1 месяц.
Чем меньше сроки, тем быстрее возврат инвестиций!
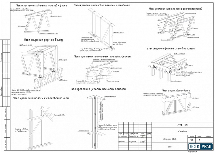
Проектируемый объект — автосервис на 4 поста с размерами 8 х 12 м.
Металлический каркас объекта состоит из конструктивных элементов:
Для устройства стального каркаса применены стальные оцинкованные холодно-гнутые профили производства ЛСТК-УРАЛ. Все соединения элементов ЛСТК выполнены при помощи самосверлящих винтов, то есть саморезов.
Конструкция была спроектирована и произведена с учетом ветровых (II) и снеговых (III) нагрузок района строительства, а именно Челябинска.
Вы всегда можете связаться с нашими менеджерами и получить ответы на любые вопросы об услугах и продукции Завод легких конструкций «ЛСТК-Урал»
Звоните нам +7351 242 00 30 или пишите lstk-ural@mail.ru. Мы всегда рады общению!
Сколько постов будет в вашем здании? Будет это шиномонтаж или автомойка самообслуживания или быстровозводимый автосалон? Нужно ли кафе? Грузовой или легковой транспорт вы планируете обслуживать? Отправьте нам ТЗ и грамотное решение не заставит себя ждать. Инженер подготовит чертежи конструкций автосервиса, чтобы вы увидели будущие боксы здания своими глазами.
Компания «ЛСТК-Урал» занимается производством и строительством быстровозводимых зданий для различных видов деятельности с проектом по доступной цене и в различной комплектации
Преимуществом наших сооружений являются более короткие сроки изготовления и установки, а также низкая цена по сравнению с аналогичными зданиями и сооружениями из бетона и кирпича.
В зависимости от запросов заказчика, мы предложим быстровозводимые модульные здания в стандартном исполнении, или с учетом индивидуальных пожеланий.
Срок изготовления 1-2 дня. Материал в местах стыков обжат, имеет отверстия и углубления под шляпки саморезов.
Идеально ровная поверхность.
Отсутствует обрезь.
Благодаря малому весу значительная экономия на доставке.
Не требуются расходные материалы и дополнительное оборудование для обработки и монтажа.
Благодаря высокой жесткости возможно изготовление пролётов до 24х метров, что приводит к экономии на сваях и опорах.
Автоцентр, СТО, шиномонтаж или автомойка из металлических профилей обладает следующими преимуществами: